
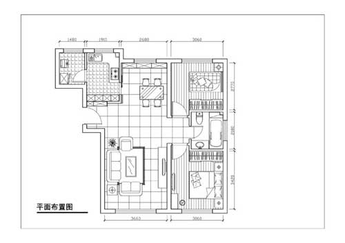
首先,在原结构厨房墙基础上改造成鞋柜,转角柜,酒柜。尽量利用每一寸空间,功能合理,简洁大方。
真正意义上的南北通风,全明设计,南北双阳台,室内无论哪个角度,皆可欣赏室外美景,弧形景观阳台,让阳光铺洒每一个房间,南北卧室均采用凸窗设计,空间自然延伸扩大,阳光,空气,美景一个都不少。
面积适中,简约实用,绝无小户型捉襟见肘之感,设计师采用玻璃作为主材,采用园林中“透”的手法塑造电视墙,大面积玻璃窗使空间更显开阔。
空间布置紧凑,功能齐全,设计师一贯推崇的纯粹精神奠定了整体空间气质,以黑白为基调,并增加一丝风情元素,自己的家简约,自然,有一点东方色彩。
卧室与厅完全分隔,动静完美分区,绝佳私密性,空间利用率高,居家完美之选。用各种艺术手法来进行设计,使生活在城市中的人们所具有的潜在怀乡和回归自然的情绪得到补偿。
设计强调空间“和谐性”和“无限性”的精神品质,同时吸取了简洁,实用的现代理念,在动静,开合,刚柔的搭配中营造诗意的栖局居,令人心里充满温暖,这是家的感受,植物元素也带给
了设计自然休闲的东方意境。





方案将原本正对着入户门的厨房门洞改到了厨房与餐厅相邻的位置,作推拉门,在空间上缩短了由厨房到餐厅的距离。在原有的厨房门洞的位置作鞋柜,节省了空间并使空间更加合理,紧凑。卫生间的门使用了透光材料,充分利用自然光,增强了过道的光线。餐厅靠窗户位置,作了一个通长的与窗台一般高、底部悬空的餐柜,增强了空间的储藏收纳功能。如果我们再在餐柜上摆放几盆自己钟爱的花卉,这样,随时可让家人和朋友闻到家的温馨和清香。
空间的大色调为白色,洁静典雅,清新浪漫,在视觉上给人形成了更为宽阔的感觉。在空间的转折和视觉中心界面的处理上,大方而不失细节。巧妙使用了镜面,对镜面作了喷砂处理,使平面镜的表现力更丰富,同时也丰富了空间的细节和张力。夜晚,灯光投射在地面、在墙上优美的光影,带来了与众不同的灯光体验,使在家的夜晚不再单调。整个空间力求满足现代人对生活精致品质的个性追求。





